پنل بتنی پیش ساخته
در صورت تمایل به استفاده از ابعاد دیگر، میتوانید ابعاد دلخواه خود را سفارش دهید.
دنیا را با ایده هایتان شگفت زده کنید
سوراخ بولت
در برخی موارد از سوراخ بولت استفاده دکوراتیو می شود؛ بدین صورت که چیدمان آن متناسب با ابعاد قالب طراحی شده و بخشی از ظاهر نهایی بتن اکسپوز را تشکیل می دهد. از این رو می توان گفت که یکی از وجوه شاخص دیوارهای بتن اکسپوز، سوراخ بولت می باشد.
در اجرای بتن های درجا، کنترل کنترل رنگ بتن مشکل بوده اما در پنل های پیش ساخته این موضوع تا حد بسیار زیادی قابل کنترل می باشد.
در اجرای بتن های درجا، کنترل رنگ بتن مشکل بوده اما در پنل های پیش ساخته این موضوع تا حد بسیار زیادی قابل کنترل می باشد. با توجه به سلیقه مخاطب و همچنین طراحی در نظر گرفته شده برای استفاده از پنل های بتنی، امکان تولید رنگ مورد نظر وجود دارد.
اجرای بتن های درجا
در اجرای بتن های درجا، کنترل رنگ بتن مشکل بوده اما در پنل های پیش ساخته این موضوع تا حد بسیار زیادی قابل کنترل می باشد. با توجه به سلیقه مخاطب و همچنین طراحی در نظر گرفته شده برای استفاده از پنل های بتنی، امکان تولید رنگ مورد نظر وجود دارد.
کدرنگ
پنل های بتنی
کدرنگ
پنل های بتنی
کدرنگ
پنل های بتنی
کدرنگ
پنل های بتنی
دنیا را با ایده هایتان شگفت زده کنید
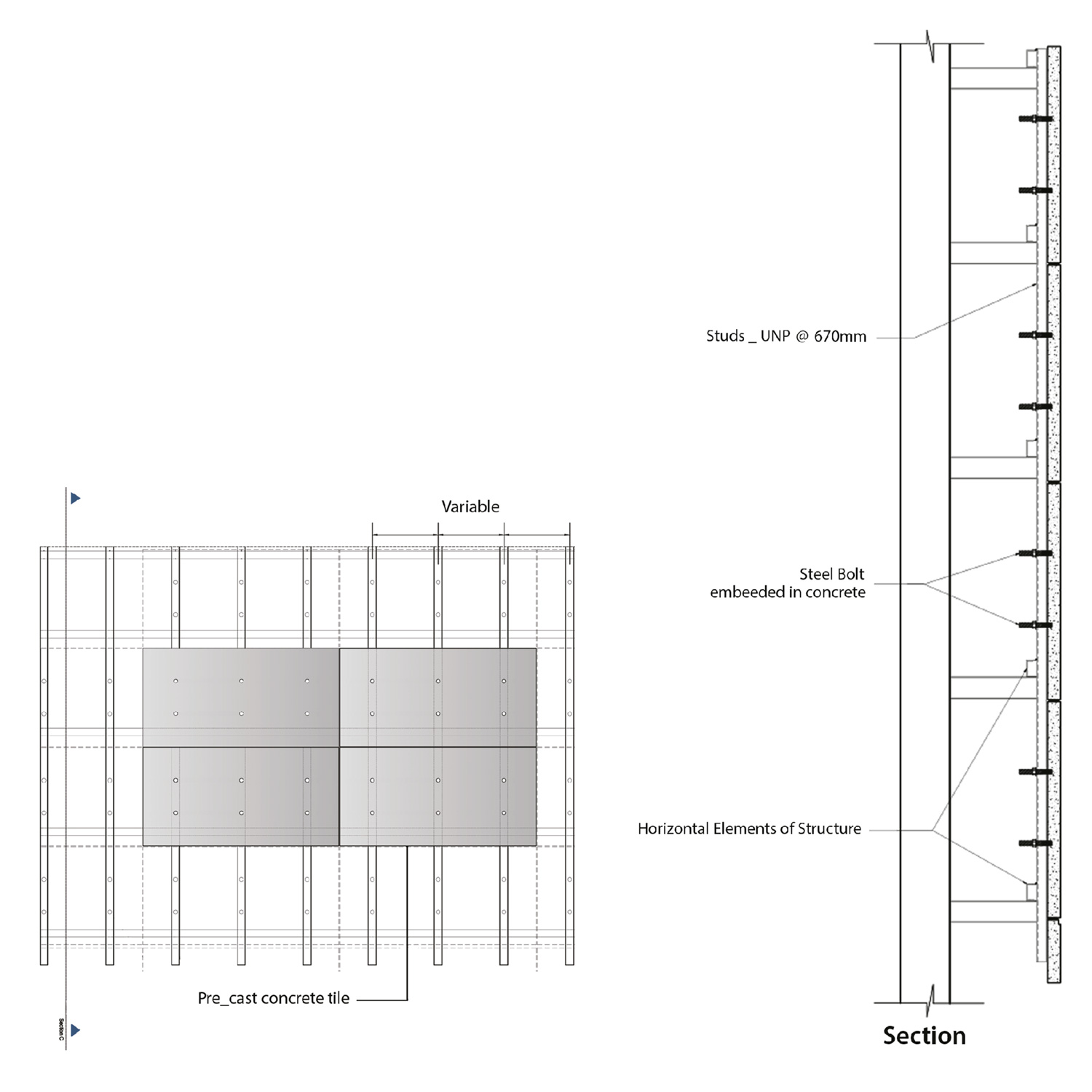
روش های نصب
روش ترکیبی
روش نصب جوشی
روش نصب جوشی
روش دوغابی
روش پیچی
روش ترکیبی
روش نصب جوشی
